QIYUN MOUNTAIN CAMP
The Qiyun Mountain Camp is a natural adventure and extreme sports park located near Qiyun Mountain, a sacred site known as the birthplace of Taoism and the yin-yang symbol. Designed to blend into the pristine natural surroundings, the park's public service buildings are constructed from repurposed shipping containers, cut and reconfigured to create versatile, functional spaces.
The containers are joined, mirrored, tilted, and combined in innovative ways to suit various programs, forming unique architectural typologies. The park is organized into three distinct, color-coded areas, carefully integrated into the landscape to respect the varying topography and provide clear landmarks within the natural setting.
- Orange and Blue: Entrance Area
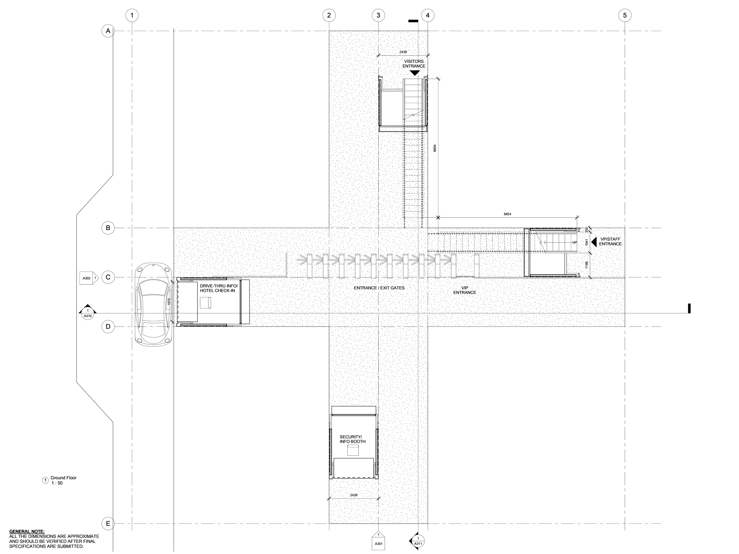
This area includes the Entrance Pavilion, a two-level structure housing turnstiles, offices, a ticket area, and an information center. Visible from the main roadway, it provides access to Market Street, which features shops, cafes, service areas, and restrooms. With pergolas, double levels, and upper decks, Market Street connects seamlessly to the surrounding landscape. - Yellow and Blue: Restaurant Plaza
Located on one of the park’s hills, this area offers indoor dining and an outdoor terrace overlooking the river. It slopes downward into an open amphitheater, providing a social space that connects visitors to the park. A tilted container serves as a zip-line lunch platform, adding a playful, functional element. - Blue: Aquatic Pier
Positioned by the lake, the Aquatic Pier provides access to water activities. Modular units cluster around shaded areas with changing rooms and cafes, offering storage for kayaks and guiding visitors to the floating pier, which stretches into the lake for water sports. 
The Qiyun Mountain Camp uses bold, functional design to create a harmonious relationship between architecture and nature, offering visitors an immersive experience that celebrates the site's sacred and adventurous spirit.
RESTAURANT PLAZA
AQUATIC PIER
MAP + DRAWINGS
ENTRANCE AREA BUILDING PROCESS
Credits
Client: ZYJ Sunriver, ChinaType: Entrance Pavilion, Market Street, Restaurant Plaza, Acquatic Sports Pier, Rest Stations
Location: Qiyun Mountain, Huangshan, China
Consultants: Structural Engineering/Robert Silman Associates; Structure/Silman Associates;
Fabrication: ArchiSpace
Size: 75,000 SF, with 5,000 SF Entrance Pavilion, 35,000 SF Market, 15,000 SF Restaurant, 5,000 SF Aquatic Pier
Design: 2015
Completion: 2017
